1
2
3
4
Check-in
Check-out
Occupazione massima
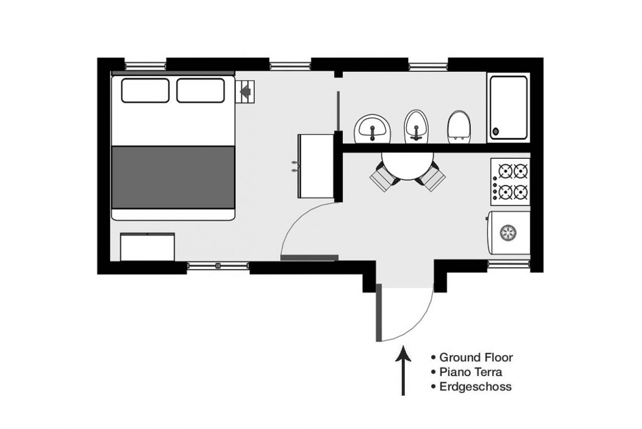
L’appartamento Piccolissimo è un bilocale di 18mq ricavato da quella che una volta era solo una stanza di servizio adiacente al fienile. Composto da una cucina attrezzata, un soggiorno con letto “francese” (140 x 200 cm) a soppalco ed un bagno completo è un alloggio ideale per una o due persone che non hanno esigenze di molto spazio.
Dotazioni
Accesso ad internet
Accessori bagno
Accessori cucina
Animali domestici permessi
Appendini
Area barbecue
Armadi in stanza
Asciugamani
Auto consigliata
Bagno libero da impedimenti
Barbecue grills
Biancheria da letto
Bicicletta
Bidet
Canali internazionali
Ciclismo
Costo extra per letto extra
Cucina
Cucina completa
Doccia
Estintore
Famiglia
Fornelli
Frigorifero
Giardino
Internet wireless
Letto Queen
Macchina caffè/te
Piatti e ciotole
Piumone
Riscaldamento / Condizionatore autonomo
Rurale
Soffione doccia accessibile
Solo doccia
Spazio esterno
TV
TV
TV satellitare
Vacanza in fattoria
Località
via Cividale 1 - Povoletto






